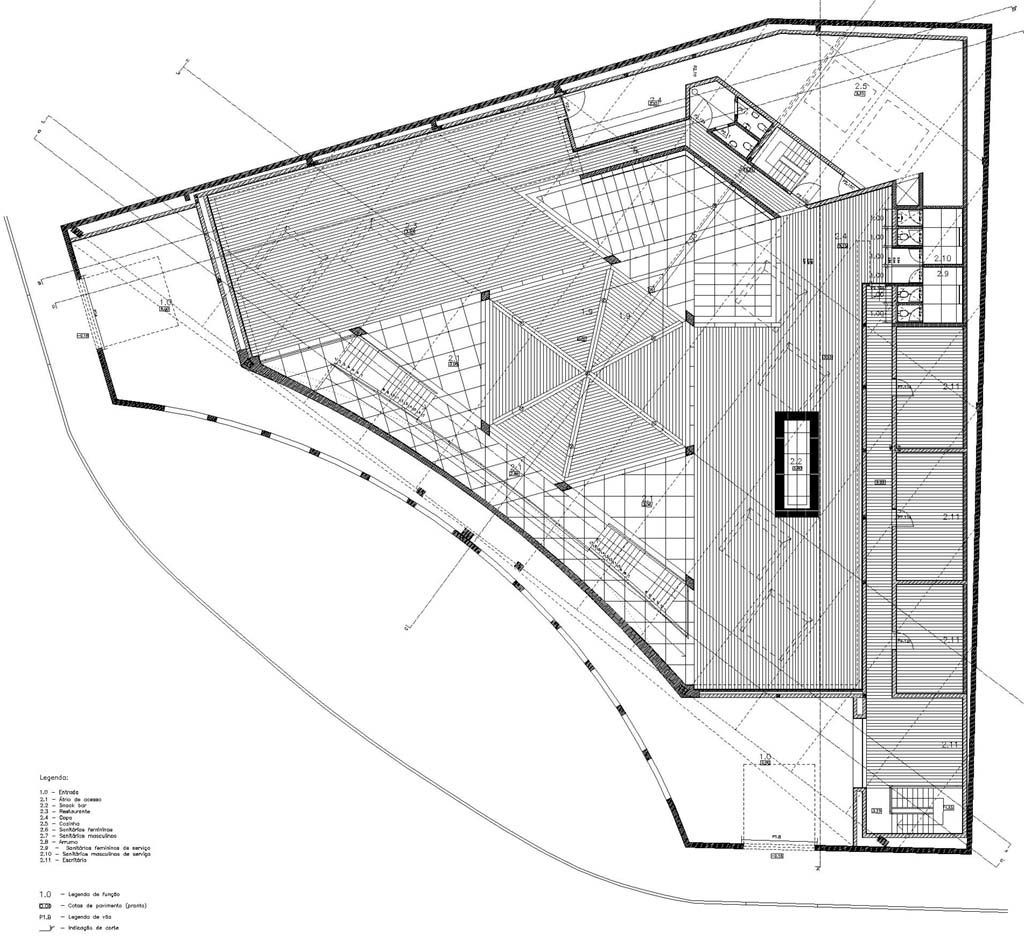
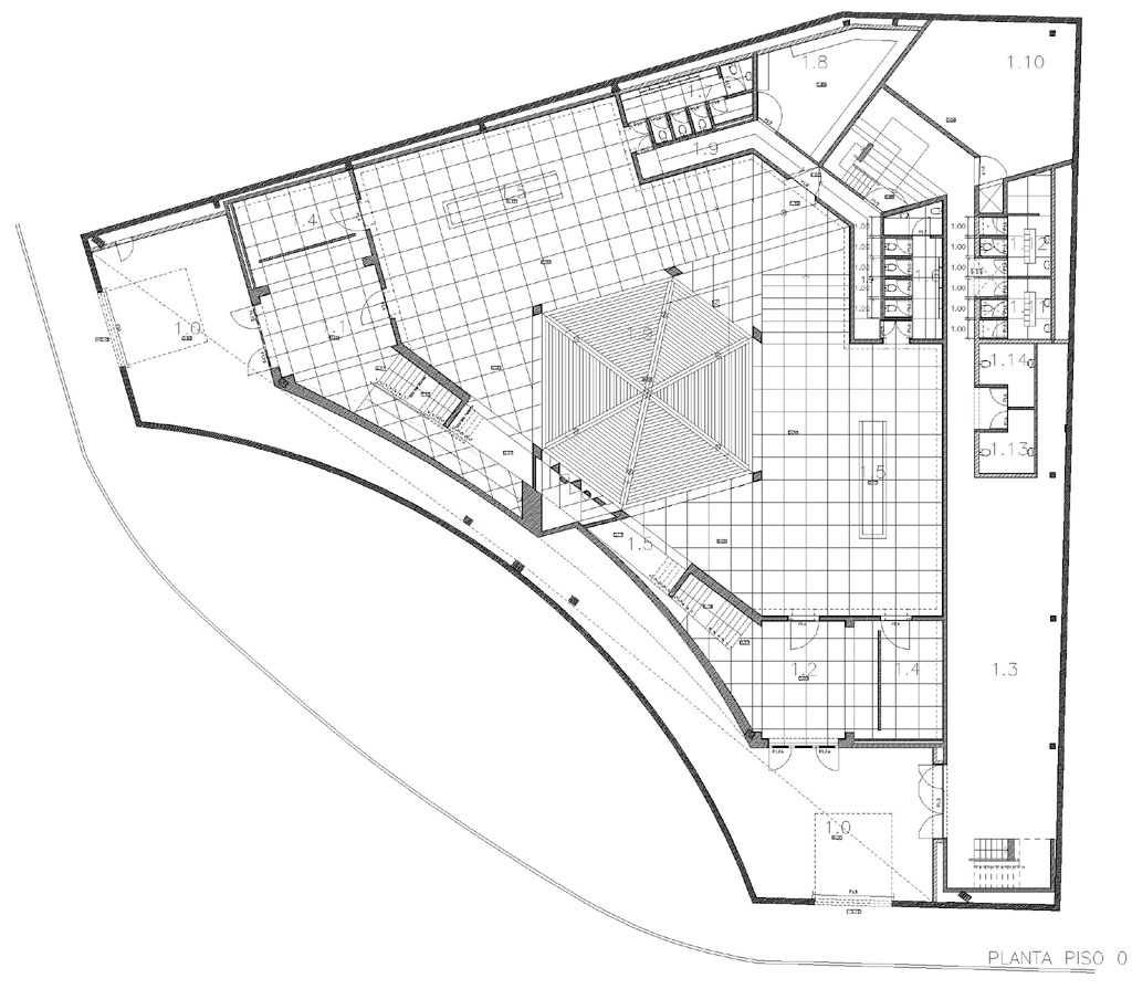
THE ROCK From the amazing pyramids of Egypt to the awesome Gothic Cathedrals and beyond, the architecture of buildings of faith has always fascinated man as he craves to worship a greater being. Architecture has played a key role in shaping this narrative and need and contemporary religious structures in recent times have been of great interest to many architects. At PREDIOS Group, our first deep dive into designing a Building of Faith was “the ROCK” The words of Jesus in Matthew 16:18 have inspired our Design processes ‘Upon this rock I will build my Church;‘ The “ROCK” seeks to redefine the architecture of the Contemporary Charismatic Church, away from their traditional imagery of “church buildings” towards a contemporary outlook correspondent to the new “face” and social influence of the church. The design’s guiding scriptural passage is the basis around which the building form is developed, a literal exploration of what a rock stands for to make a strong aesthetic statement for ICGC as a leader in the Charismatic circles and an advancer of the Christian cause. The emergent form is therefore a sum of linkages placed within a polyhedron, sitting astride a big plaza with linking bridges over the bordering stream to welcome the surrounding communities to events. the ROCK This “12-sided polyhedron” of geometric planes of differing shapes and sizes, representative of the twelve disciples receiving the teachings of Christ is the most prominent on the site. In the tower, there is a drift away from the traditional bell tower, which normally calls for worship, to a contemporary habitable volume for the clergy and church administration. The block leans forward towards the Atlantic Ocean at one edge as it rises, ending at its foremost point on the uppermost floor, which accommodates the leader of the Church. The volume is transparent on both northern and southern faces, framing an optimistic view of the future. The Design makes provision for urban tunnels to bridge across the adjacent stream to the generous forecourt and plaza to welcome the inhabitants of of Accra and beyond to the house of God. The Rock is conceived not only as a landmark building for the Charismatic movement in Ghana but also as a catalyst building for the transformation of this socially deprived part of Accra trade marking a renewed era of deeper public engagement of the church, the surrounding community and society at large.





